
오토데스크 레빗 단축키 설정의 기본
오토데스크 레빗의 단축키는 오토캐드나 어도비의 포토샵, 일러스트 프로그램 등 다른 프로그램과 달리 최소 2글자 이상의 알파벳으로 설정할 수 있습니다.
예를 들어 '이동'은 MV, '복사'는 CO와 같은 방식입니다.
기본적으로 설정되어 있는 단축키 외에 추가하거나 변경할 경우 아래의 방법으로 가능합니다.
단축키 추가 방법
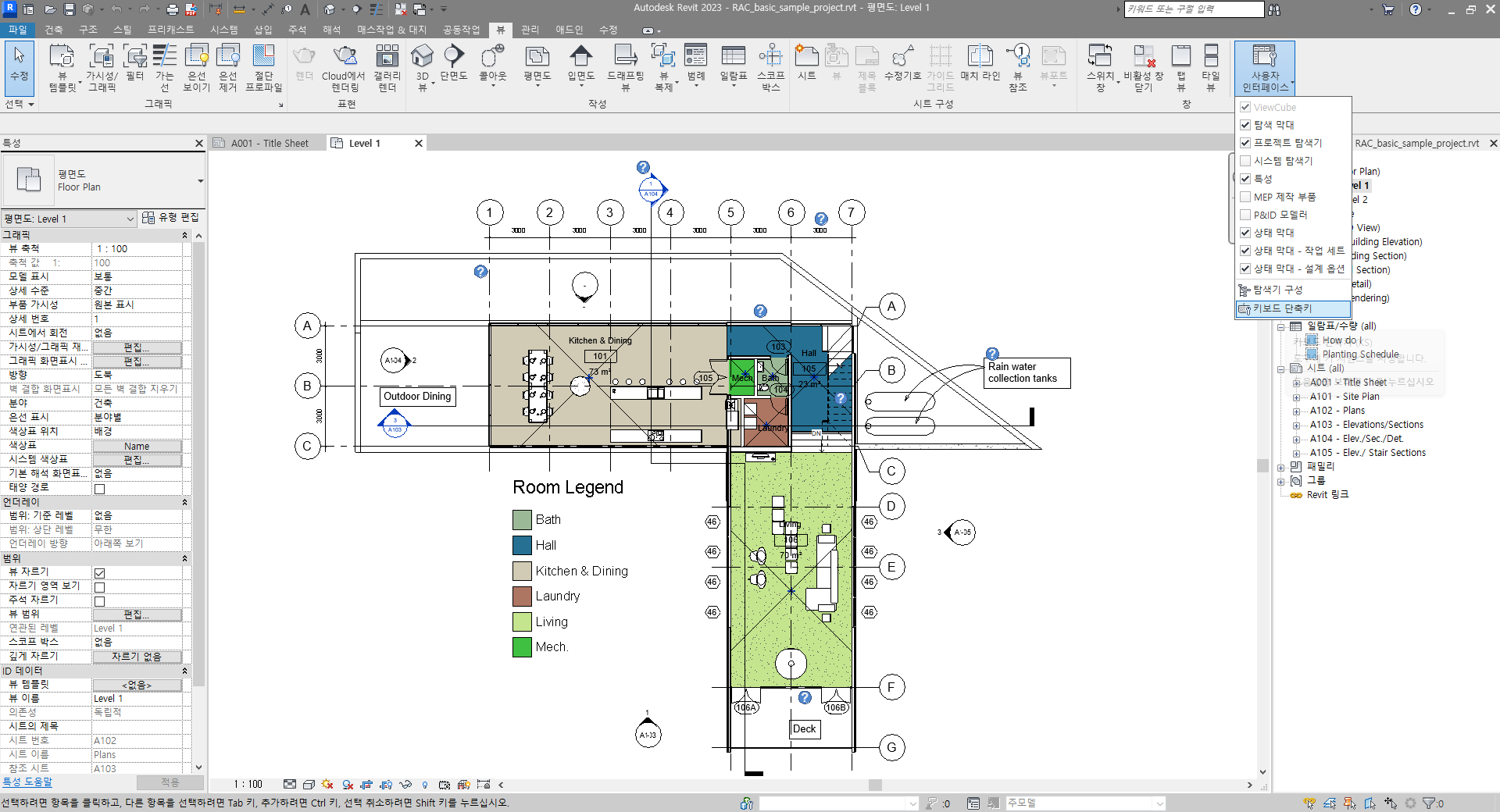
<상단 뷰탭 - 사용자 인터페이스 - 키보드 단축키>
영문버전 <View tab - User Interface(drop-down) - Keyboard Shortcuts>

상단 리본메뉴에서 뷰탭을 클릭하면 가장 오른쪽 편에 '사용자 인터페이스'가 있습니다.

사용자 인터페이스를 누르면 가장 아래쪽에 '키보드 단축키'가 있습니다.

명령 이름을 검색하거나 지정창 아래에서 선택한 후 '새 키 입력' 란에 원하는 글자를 넣어주고(* 두 글자 이상 가능)
+지정(A)을 누르면 됩니다.
확인 버튼을 누르면 바로 단축키가 적용됩니다.
(캐드와 달리 프로그램을 종료했다가 다시 켜지 않아도 바로 새로 적용한 단축키를 사용할 수 있습니다.)
단축키 중복

만약 추가하거나 변경하려고 하는 단축키가 기존에 다른 명령에 입력되어 있다면 위 그림과 같이 중복된 바로가기 경고창이 나타납니다.
(이동 명령에 'MM'이라는 키를 추가 지정하려고 했으나 대칭-축 선택 명령에 이미 'MM' 단축키가 지정되어 있는 상황)
경고창의 내용처럼 중복된 단축키는 가능하지만 사용 시 불편할 수 있습니다.
그래서 다른 키를 입력하거나 기존 다른 명령에 입력된 단축키를 바꿔준 뒤 설정할 수 있습니다.
단축키 제거

지정된 단축키를 제거하려면 원하는 명령의 바로가기(단축키)를 클릭하면 아래 -제거(R) 버튼이 활성화됩니다.
제거 버튼을 누르면 바로 삭제됩니다.
오토데스크에서 제공하는 기본 단축키를 정리한 파일(PDF, 워드)을 공유합니다.
(단축키 및 명령 설명은 영어)
'건축 > 프로그램' 카테고리의 다른 글
| AutoCad 오토캐드 오류 최적화 (0) | 2023.04.17 |
|---|---|
| AutoCad 오토캐드 CTB 추가 및 변경 (0) | 2023.02.07 |
| AutoCad 캐드 소스 다운로드 사이트 (0) | 2022.09.27 |
| Sketchup 스케치업 재질 다운로드 사이트 (0) | 2022.09.02 |
| 건축 참고 사이트 실무 및 조사 (0) | 2022.08.31 |
댓글